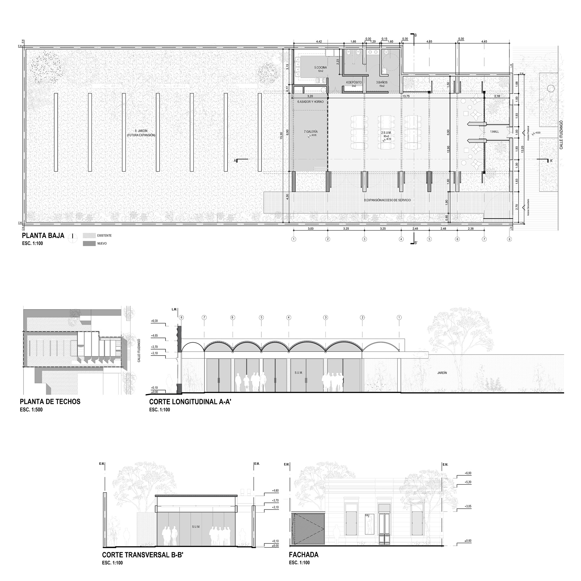
Concurso Provincial de Ideas Lugar-Casa de Encuentro CAUD5, Rafaela, Santa Fe. 2023. Equipo: Arq. Pablo Anzilutti, Arq. Roberto Fernández, Arq. Joaquin Verde, Arq. Ramiro Mairani, Arq. Valentin Monge, Manuel Baumgartner.