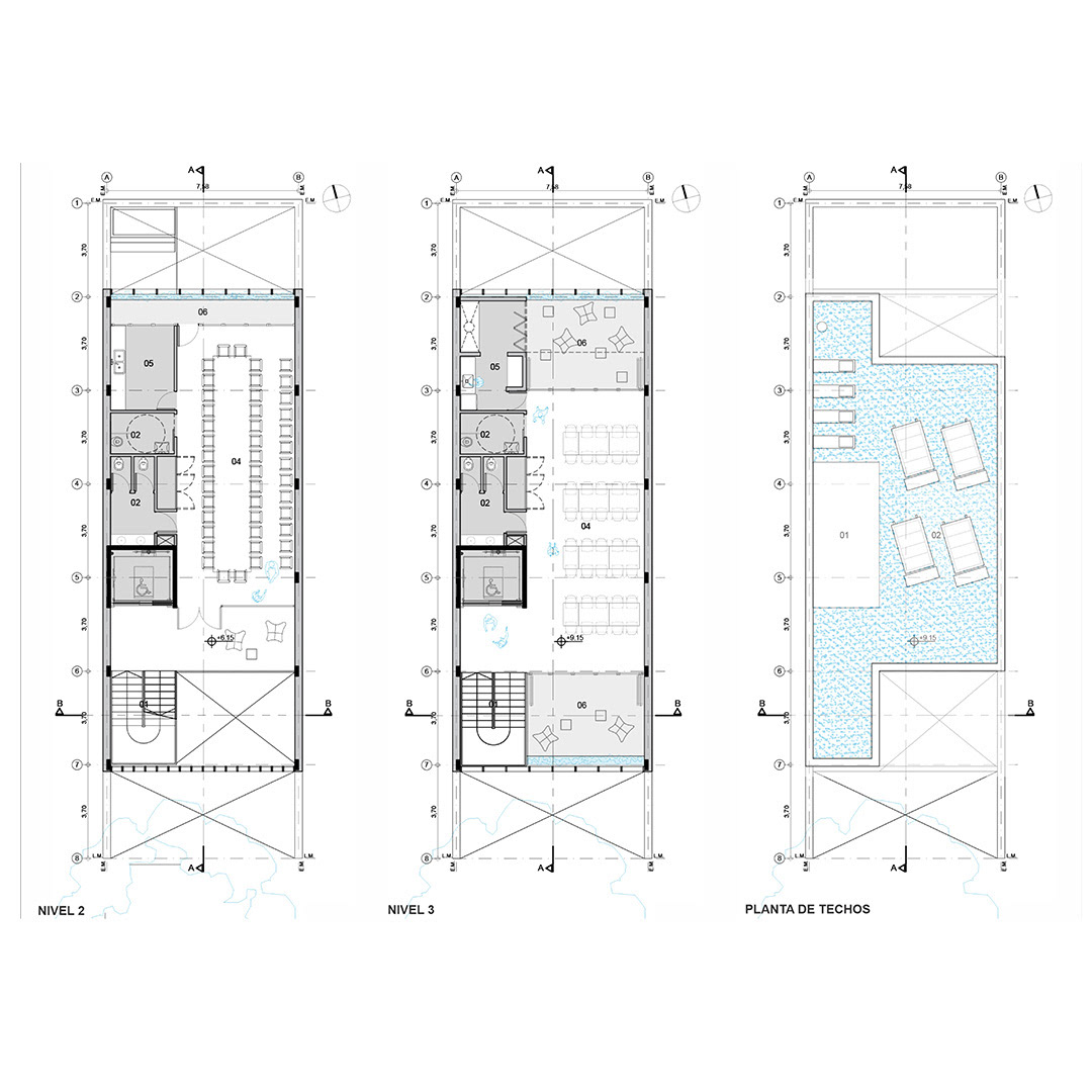
Concurso Provincial de Anteproyectos Nueva Sede AEV. 2023. Equipo: Arq. Pablo Anzilutti, Arq. Roberto Fernández, Arq. Joaquin Verde, Arq. Ramiro Mairani, Arq. Valentin Monge, Manuel Baumgartner.